Products & Solutions > ALL IN ONE SOLAR STREET LIGHT (DLX SERIES) >
40W Integrated Solar Street Light
*Type: Solar
*Power: 40W
*Light Source: PHILIPS 3030 195lm/W
*Lumen: 4800lm-5600lm
*Color temperature: 5000K (full color temp. range 2700~6500K available)
*Light Body Material: Aluminum Alloy
Detail >
FEATURES & ADVANTAGES
-
5,600 LM max lamp lumen high brightness
-
100,000+ Hours long LED lifespan, with professional heat dissipation design
-
25 Years long product lifespan
-
3,000+ Cycles life LiFePO4 batteries with inbuilt Micro-BMS technologies
-
22.5% Efficiency SUNPOWER solar cells
-
99.9% MPPT solar charge efficiency
-
IP68 rated controller vs. IP66 rated electrical compartment
-
7+ Days cloudy/rainy days autonomy
-
IES Type 1~5 with professional optical designs available to match different project requirements
-
Flexible & Customized Working Modes with timer and motion sensor by programming
-
IoT Control and online remote monitoring as optional via ZigBee or LoRaWAN
TECHNICAL SPECIFICATIONS
DISTRIBUTIONS & IES TYPE

DIALUX SIMULATION REPORT
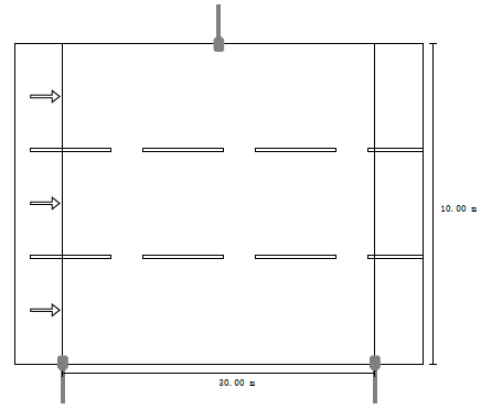
Street Profile: ( Tarmac: R3, q0: 0.070)
Pole Height :7m ; Road Width: 10m; Pole Distance :30m; Lanes: 3;
Luminaire Arrangements

Valuation Field Roadway / Isolines (E)

ESAVIOR TEAM:
